Máximo hueco libre para acristalamiento: 48 mm.
Máximo aislamiento acústico Rw=46 dBA
Transmitancia U H (W/m².K) = 2,0
para ventana 1,20x1,20m. 2 hojas
vidrio 4/16/4 bajo emisivo UH,v (W/m².K) =1,6
UH,m (W/m².K) =2,7
Zonas de cumplimiento* del CTE: A B C D E
* En función de la transmitancia del vidrio.
Apertura Interior:
Practicable, Oscilo-batiente, Pleglable, Oscilo-paralela y Abatible
Apertura Exterior:
Practicable, proyectante-deslizante
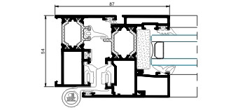
SECCIONES
· Marco – 54 mm.
· Hoja – 63 mm.
ESPESOR PEFILERíA
ventana 1,5 mm.
puerta 1,7 mm.
Longitud varilla poliamida 24 mm.
DIMENSIONES MáXIMAS
Ancho(L)= 1.600 mm.
Alto(H)= 2.600 mm.
*ventana 1 hoja, oscilo-batiente
Peso máximo / hoja 120 Kg.
Consultar peso y dimensiones máximas para el resto de tipologías.
Permeabilidad al aire (UNE-EN 12207:2000):
CLASE 4
Estanqueidad al agua (UNE-EN 12208:2000):
CLASE E1200
Resistencia al viento (UNE-EN 12210:2000):
CLASE C5
Ensayo de referencia ventana 1,20 x 1,20 m., 2 hojas.
